
















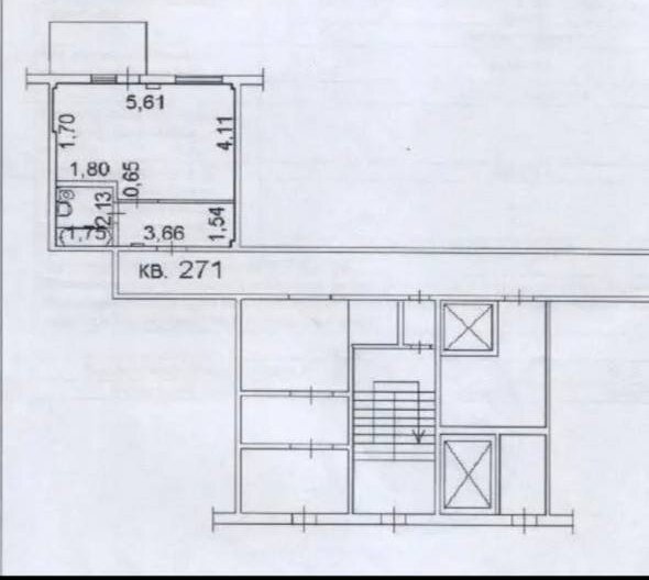
Квартира-студия: Красноярск, Караульная улица, 38 (31.3 м²)
Продаётся 1-комнатная квартира с балконом на 1 этаже из 17, в монолитном доме по адресу Караульная, 38, в г. Красноярск.
Собственник!!! Свободная продажа. Два совершеннолетних собственника. Квартира более пяти лет в собственности. Обременений нет.
Квартира тёплая, оборудована теплыми полами, с продуманной планировкой; идеальна для студента или молодой семьи, которые ценят удобство и экономичность. У квартиры удобная транспортная доступность: 10 минут на автомобиле до центра города, ТРЦ «Планета», Леруа, Свободного, Калинина, выезда из города (на общественность транспорте 20-25 минут), удобные выезды на основные транспортные развязки, что позволяет добраться без проблем до любого района города. Развита доступность общественного транспорта
Микрорайон «Яблони» самый продуманный ЖК в новой Покровке. Дома в ЖК расположены по границам жилого комплекса, а социальная инфраструктура в центре: два муниципальных садика – 48 и 49, новая школа 159, сквер для прогулок и самая большая современная клиника за Уралом со своими отделениями: стоматология, гинекология, дневной стационар, травмпункт и др. Жк построен по принципу открытости и доступности среды: все дворы, скверы открыты для посещения жителями.
В пешей доступности расположены и другие муниципальные сады, в тч с бассейном, а также образовательный комплекс «Покровский», где также для детей и взрослых имеется бассейн с тремя чашами, где учтены возрастные особенности детей, две детские поликлиники, в тч НИИ изучения «Проблем Севера».
Досуговая, развивающая и образовательная деятельность как для детей, так и для взрослых также представлены в пешей доступности: фитнес-залы, кружки, секции по любым направлениям и единоборствам. Вы с легкостью подберете что-то для членов семьи.
В пешей доступности два ТРЦ «Зеленый» и ПокровСкай. В районе представлены и сетевые магазины и супермаркеты: лента, командор, хороший, что позволяет удовлетворить потребности, не выезжая в большие ТЦ.
Если вы рассматриваете покупку для себя и своей семьи
Особенности
Другие однокомнатные квартиры
1-к кв. Красноярский край, Красноярск просп. 60 лет Образования СССР, 61 (43.8 м²)
1-комнатная квартира: Красноярск, проспект 60 лет Образования СССР, 61 (43.8 м²)
Последние добавленные апартаменты
О нас говорят
Хорошая услуга «Личный помощник». За вами закрепляют менеджера, который подбирает для вас варианты, помогает с подписанием договора и проверкой квартиры. Константин оперативно отвечал на наши вопросы и подстраивался под возникающие в ходе поиска требования.
Ins Fairy
Нашел себе отличную квартиру в Мск на Локалс. В этот раз пользовался услугой Личный помощник; Каждый день мне присылали варианты и по моим ответам уточняли мои критерии. В итоге выбрали прямо то, что мне было надо!
Ilya Malov
Отличный сервис! Нужный вариант подобрали уже на следующий день после обращения. Документы с арендодателем я подписала в конце той же недели и сразу переехала. Квартира после ремонта, все новое, я — первый арендатор, до метро 15 минут пешком. Это потрясающе!
Maria Levkina
Поиски квартиры заняли ровно неделю, Андрей проверял все варианты и составлял подробное описание. Так же оказал помощь при подписании договора. И вот теперь, я снимаю квартиру без комиссии, от собственника, с хорошим ремонтом, в новом доме по приемлемой цене.
Dmitry Kovtun
Клиентоориентированность — на высшем уровне. И форма связи любая.. мне было удобно общаться через почту — не проблема: в будни и даже в выходные, и днем и ночью — постоянно на связи) В какой-то момент даже подумала, что личный помощник никогда не отдыхает))
Teresa Olehnovich
Услуга «Личный помощник» — это не только дешевле, чем платить деньги каким-то непонятным посредникам или риэлторам, но и гарантированная ежедневная консультация от грамотного специалиста. Одним словом, всё очень понравилось.
Алина Василевская
Моя оценка 5! Нашли с личным помощником то, что нужно!! Удобно и безопасно. Отличный, проверенный сайт! Спасибо, Локалс!
Еленка Потапова
Искал с помощью услуги «Личный помощник». Сервис справился с поставленной перед ним задачей — найти мне жильё в короткие сроки (дедлайн 1,5 недели). Спасибо!
Dimas
У меня только положительные впечатления остались. Мне присылал варианты каждый день, иногда даже дважды. Всегда оперативно реагировал на мои пожелания. В итоге, так и сняли одну из предложенных квартир и очень довольны.
Любовь












