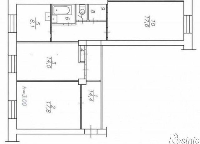
3-комнатная квартира: Красноярск, Свободный проспект, 53 (77.4 м²)
Добрый день, нас зовут Нина и Анна. Граждане РФ.
Продадим свою трёхкомнатную квартиру в доме по адресу Свободный проспект 53.
Квартира требует ремонта.
Ограничений и обременений нет.
От себя гарантируем юридическую чистоту объекта, быстрый выход на сделку. Продажа в связи с получением квартиры в наследство. Квартира находится в собственности нашей семьи со времён до приватизации.
Сотрудничество с агентами на выгодных нам условиях.
Приоритет - частные лица.
Всегда на связи. Пожалуйста уважайте ваше и наше время.
Показ возможен в присутствии потенциального покупателя, в любые дни по предварительному согласованию.
Только безналичный расчёт.
------Дом------
- Кирпичный дом с железобетонными перекрытиями;
- Трехметровые сталинские потолки;
- Высокие окна и дверные проемы;
- Просторный не вонючий подъезд;
- Широкая лестничная клетка;
- Не газифицирован;
- Окна на обе стороны (Свободный проспект и двор). Утром солнце со стороны двора, вечером со стороны улицы;
- Вид на парк им. Ю. Гагарина;
- Зелёный двор с детской площадкой.
------Инфраструктура------
Парки:
- Парк им. Ю. Гагарина прямо под окнами;
- Троя парк - 8 мин. пешком;
- Фестивальный сквер - 6 мин. пешком.
Транспорт:
- Строящаяся станция метро “Улица Копылова” - 19 мин. пешком;
- Автобусы и троллейбус до центра с ближайших остановок;
- Автобусы и троллейбус до СФУ и Академа с ближайших остановок;
- До ЖД вокзала 15 минут на автобусе с ближайшей остановке и 7 минут на собственной машине.
Школы:
- СОШ №21 - 4 мин. пешком;
- Гимназия №3 - 7 мин. пешком;
- Гимназия №9 - 8 мин. пешком.
Образование:
- ИрГУПС - 4 мин. пешком;
- КрасКРИТ - 6 мин. пешком.
Здоровье:
- Поликлиника №4 - 5 мин. пешком;
- Детская больница №1 - 9 мин. пешком;
- Гемотест - 7 мин. пешком;
- Инвитро - 8 мин. пешком.
ПВЗ Яндекс.Маркет прямо в доме, ВБ и Ozon в соседних домах.
Супермаркеты Пятерочка, Батон, Красный Яр и торговые центры Изумрудный город, Петровский пассаж, Славянский в шаговой доступности.
Особенности
Другие 3-х комнатные квартиры
Последние добавленные апартаменты
Студия Красноярский край, Красноярск ул. Александра Матросова, 30с83 (18.0 м²)
3-к кв. Красноярский край, Красноярск Судостроительная ул., 177а (65.0 м²)
О нас говорят
Хорошая услуга «Личный помощник». За вами закрепляют менеджера, который подбирает для вас варианты, помогает с подписанием договора и проверкой квартиры. Константин оперативно отвечал на наши вопросы и подстраивался под возникающие в ходе поиска требования.
Ins Fairy
Нашел себе отличную квартиру в Мск на Локалс. В этот раз пользовался услугой Личный помощник; Каждый день мне присылали варианты и по моим ответам уточняли мои критерии. В итоге выбрали прямо то, что мне было надо!
Ilya Malov
Отличный сервис! Нужный вариант подобрали уже на следующий день после обращения. Документы с арендодателем я подписала в конце той же недели и сразу переехала. Квартира после ремонта, все новое, я — первый арендатор, до метро 15 минут пешком. Это потрясающе!
Maria Levkina
Поиски квартиры заняли ровно неделю, Андрей проверял все варианты и составлял подробное описание. Так же оказал помощь при подписании договора. И вот теперь, я снимаю квартиру без комиссии, от собственника, с хорошим ремонтом, в новом доме по приемлемой цене.
Dmitry Kovtun
Клиентоориентированность — на высшем уровне. И форма связи любая.. мне было удобно общаться через почту — не проблема: в будни и даже в выходные, и днем и ночью — постоянно на связи) В какой-то момент даже подумала, что личный помощник никогда не отдыхает))
Teresa Olehnovich
Услуга «Личный помощник» — это не только дешевле, чем платить деньги каким-то непонятным посредникам или риэлторам, но и гарантированная ежедневная консультация от грамотного специалиста. Одним словом, всё очень понравилось.
Алина Василевская
Моя оценка 5! Нашли с личным помощником то, что нужно!! Удобно и безопасно. Отличный, проверенный сайт! Спасибо, Локалс!
Еленка Потапова
Искал с помощью услуги «Личный помощник». Сервис справился с поставленной перед ним задачей — найти мне жильё в короткие сроки (дедлайн 1,5 недели). Спасибо!
Dimas
У меня только положительные впечатления остались. Мне присылал варианты каждый день, иногда даже дважды. Всегда оперативно реагировал на мои пожелания. В итоге, так и сняли одну из предложенных квартир и очень довольны.
Любовь












