3-комнатная квартира: Красноярск, Прибойная улица, 37с4 (86 м²)
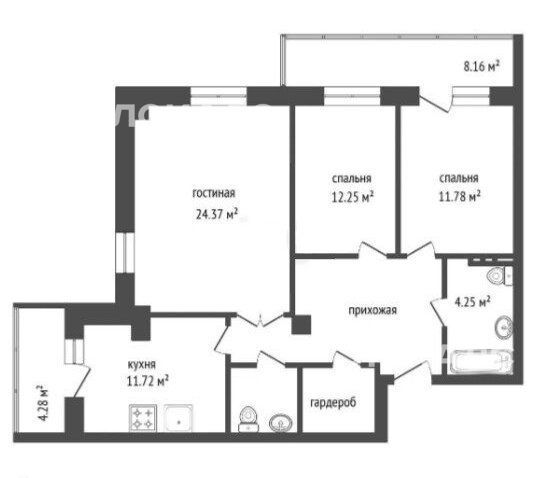
Продается прекрасная, светлая 3-х комн. кв., площадь квартиры 86м2., площадь гостиной– 25м2, комнаты – 12 и 12,5м2, кухня- 11,7 м2, 2-балкона, 2-сан.узела, так же имеется большая гардеробная (5м2).
Квартира подходит для большой семьи, планировка очень удачная, для всех найдется свое личное пространство. Окна из гостиной и кухни выходят на Енисей.
Отделка – ЧИСТОВАЯ.
Дом сдан 2024г, благоустройство двора, с видеонаблюдением, на первом этаже, хоз.комната для колясок , велосипедов . Во дворе детская площадка.
Очень красивый вид из окна !!! Планируется благоустройство комфортного пространства вокруг прудов на Судостроительной.
Квартира расположена в Свердловском районе с развитой инфраструктурой, детский сад, НОВАЯ, современная школа № 158 (на 1280 учеников), магазины, поликлиники: детская и взрослая, а так же другие социально значимые объекты, необходимые нам с Вами для комфортного проживания, все находятся в шаговой доступности.
Удобная транспортная развязка позволит Вам на одном автобусе уехать в любой район города, в том числе на левый берег, через 4-й (Николаевский) мост, через ЖК «Тихие зори.
Особенности
Последние добавленные апартаменты
Студия Красноярский край, Красноярск ул. 26 Бакинских Комиссаров, 5Г (27.0 м²)
1-к кв. Красноярский край, Красноярск ул. Партизана Железняка, 51 (45.0 м²)
О нас говорят
Хорошая услуга «Личный помощник». За вами закрепляют менеджера, который подбирает для вас варианты, помогает с подписанием договора и проверкой квартиры. Константин оперативно отвечал на наши вопросы и подстраивался под возникающие в ходе поиска требования.
Ins Fairy
Нашел себе отличную квартиру в Мск на Локалс. В этот раз пользовался услугой Личный помощник; Каждый день мне присылали варианты и по моим ответам уточняли мои критерии. В итоге выбрали прямо то, что мне было надо!
Ilya Malov
Отличный сервис! Нужный вариант подобрали уже на следующий день после обращения. Документы с арендодателем я подписала в конце той же недели и сразу переехала. Квартира после ремонта, все новое, я — первый арендатор, до метро 15 минут пешком. Это потрясающе!
Maria Levkina
Поиски квартиры заняли ровно неделю, Андрей проверял все варианты и составлял подробное описание. Так же оказал помощь при подписании договора. И вот теперь, я снимаю квартиру без комиссии, от собственника, с хорошим ремонтом, в новом доме по приемлемой цене.
Dmitry Kovtun
Клиентоориентированность — на высшем уровне. И форма связи любая.. мне было удобно общаться через почту — не проблема: в будни и даже в выходные, и днем и ночью — постоянно на связи) В какой-то момент даже подумала, что личный помощник никогда не отдыхает))
Teresa Olehnovich
Услуга «Личный помощник» — это не только дешевле, чем платить деньги каким-то непонятным посредникам или риэлторам, но и гарантированная ежедневная консультация от грамотного специалиста. Одним словом, всё очень понравилось.
Алина Василевская
Моя оценка 5! Нашли с личным помощником то, что нужно!! Удобно и безопасно. Отличный, проверенный сайт! Спасибо, Локалс!
Еленка Потапова
Искал с помощью услуги «Личный помощник». Сервис справился с поставленной перед ним задачей — найти мне жильё в короткие сроки (дедлайн 1,5 недели). Спасибо!
Dimas
У меня только положительные впечатления остались. Мне присылал варианты каждый день, иногда даже дважды. Всегда оперативно реагировал на мои пожелания. В итоге, так и сняли одну из предложенных квартир и очень довольны.
Любовь












