
















































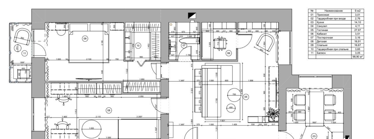
3-к кв. Красноярский край, Красноярск ул. Ладо Кецховели, 27 (100.2 м²)
Продается просторная трехкомнатная квартира с дизайнерским ремонтом (прилагается полный дизайн-проект для дальнейшей мебелировки) в новом кирпичном доме 2024 года постройки. Все комнаты изолированы, что обеспечивает комфорт и приватность. Вид из окон выходит на 2 стороны, одни на ул. Марата (тихая улица), другие на внутренний двор.
В квартире установлено 2 кондиционера (спальня и гостинная) теплый пол в санузле. Совмещенный санузел выполнен в современном стиле.
Дом от застройщика СМ Сити комфорт-класса: закрытый двор, общая входная группа с консьержем и зоной отдыха, охрана, подземная парковка, бесключевой доступ через приложение. Во внутреннем дворе расположена детская площадка в современном эко-стиле, где можно активно проводить время. Регулярно проводятся общедомовые праздники (новый год, масленица, 1 сентября и тд) с концертной программой и подарками.
Квартира находится на 7 этаже девятиэтажного здания. На площадке по 4 квартиры (все заселены), входные двери в едином стиле. Шума перфоратора практически нет, тк ремонт почти во всех квартирах сделан. Приятные соседи.
Особенности
Другие 3-х комнатные квартиры
3-к кв. Красноярский край, Красноярск ул. Ладо Кецховели, 20 (85.0 м²)
3-к кв. Красноярский край, Красноярск ул. Михаила Годенко, 7 (137.3 м²)
3-к кв. Красноярский край, Красноярск ул. Партизана Железняка, 19В (80.0 м²)
Последние добавленные апартаменты
1-к кв. Красноярский край, Красноярск ул. Академика Вавилова, 37Г (46.0 м²)
О нас говорят
Хорошая услуга «Личный помощник». За вами закрепляют менеджера, который подбирает для вас варианты, помогает с подписанием договора и проверкой квартиры. Константин оперативно отвечал на наши вопросы и подстраивался под возникающие в ходе поиска требования.
Ins Fairy
Нашел себе отличную квартиру в Мск на Локалс. В этот раз пользовался услугой Личный помощник; Каждый день мне присылали варианты и по моим ответам уточняли мои критерии. В итоге выбрали прямо то, что мне было надо!
Ilya Malov
Отличный сервис! Нужный вариант подобрали уже на следующий день после обращения. Документы с арендодателем я подписала в конце той же недели и сразу переехала. Квартира после ремонта, все новое, я — первый арендатор, до метро 15 минут пешком. Это потрясающе!
Maria Levkina
Поиски квартиры заняли ровно неделю, Андрей проверял все варианты и составлял подробное описание. Так же оказал помощь при подписании договора. И вот теперь, я снимаю квартиру без комиссии, от собственника, с хорошим ремонтом, в новом доме по приемлемой цене.
Dmitry Kovtun
Клиентоориентированность — на высшем уровне. И форма связи любая.. мне было удобно общаться через почту — не проблема: в будни и даже в выходные, и днем и ночью — постоянно на связи) В какой-то момент даже подумала, что личный помощник никогда не отдыхает))
Teresa Olehnovich
Услуга «Личный помощник» — это не только дешевле, чем платить деньги каким-то непонятным посредникам или риэлторам, но и гарантированная ежедневная консультация от грамотного специалиста. Одним словом, всё очень понравилось.
Алина Василевская
Моя оценка 5! Нашли с личным помощником то, что нужно!! Удобно и безопасно. Отличный, проверенный сайт! Спасибо, Локалс!
Еленка Потапова
Искал с помощью услуги «Личный помощник». Сервис справился с поставленной перед ним задачей — найти мне жильё в короткие сроки (дедлайн 1,5 недели). Спасибо!
Dimas
У меня только положительные впечатления остались. Мне присылал варианты каждый день, иногда даже дважды. Всегда оперативно реагировал на мои пожелания. В итоге, так и сняли одну из предложенных квартир и очень довольны.
Любовь












