















3-к кв. Красноярский край, Красноярск ул. Авиаторов, 39 (126.0 м²)
!Предложение актуально при быстром выходе на сделку!! ДЛЯ АГЕНТОВ вы можете создавать дубли этого объявления и искать клиентов, но свою комиссию прибавляйте к указанной стоимости!
__________________________________
Уникальное предложение в стоимость входит парковочное место в подземном паркинге. Вы покупаете не только квартиру, но и собственное парковочное место в подземном паркинге ЖК.
_____________________________________
Территория закрыта для посторонних. Гостевые автостоянки вынесены за периметр участка. По всему периметру и внутри самого ЖК ведется круглосуточное видеонаблюдение.
--------------------------------
На площадке всего три квартиры.
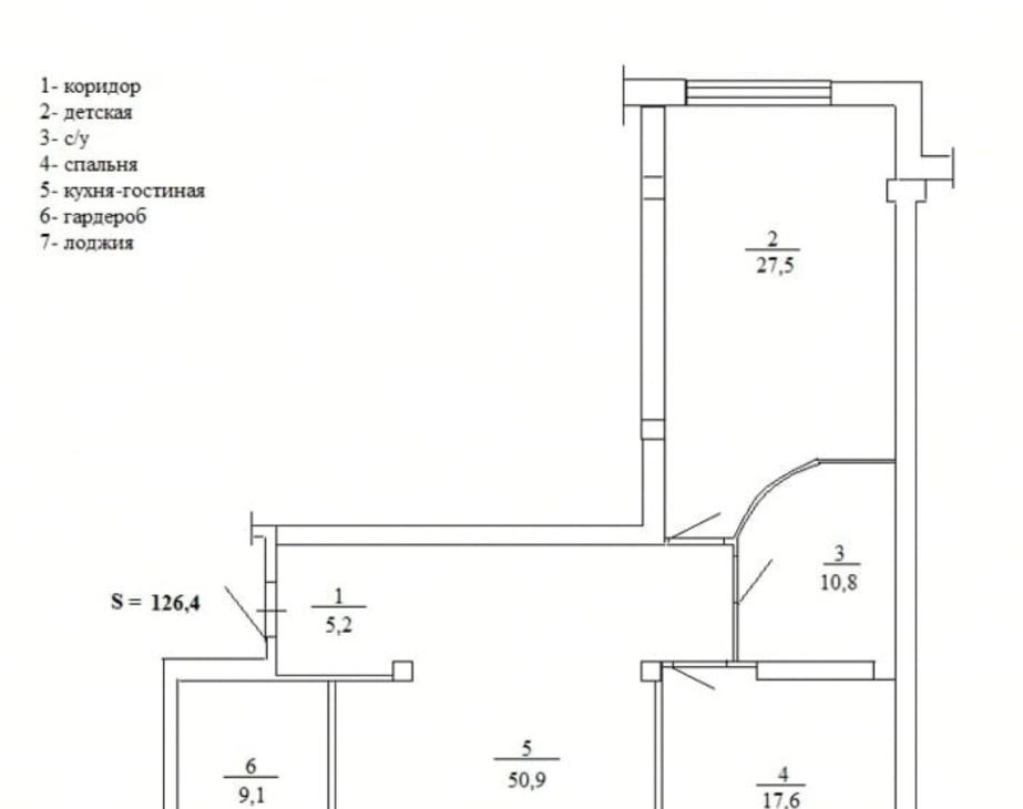
Площадь с учётом лоджии 126,4 кв. м.
Несущих стен в квартире нет, поэтому планировку можно переделать под ваши пожелания - увеличить еще на одну жилую комнату или кабинет (смотрите фото альтернативной планировки). По периметру всей квартиры утеплены стены (зимой всегда выключены батареи поскольку и без них очень тепло) и сделана шумоизоляция стен соседей, потолка и пола, полы с подогревом на лоджии и в зале. Внешний вид стен вы всегда можете перекрасить под свое желание, но во внутреннюю отделку вам уже вкладываться не придётся Большие видовые панорамные окна во всех комнатах квартиры выходят на две стороны - во двор и на улицу Молокова. Подъезд находится в середине дома, что не мало важно в данном доме в квартире выполнен хороший ремонт. Индивидуальная грамотная-планировка с разделением общей и спальных зон, сделано отдельное помещение для вместительной гардеробной комнаты 9.1 кв. м, 2 большие просторные спальни 17 и 27 кв. м, вместительная прихожая 6 кв. м, во всём пространстве квартиры грамотно организованы места для хранения. Совмещённый санузел 10.7 кв. м оборудованный итальянской встроенной системой (унитаз безободковый, раковина длинная удобная, огромная ванна) сантехники . В детской комнате разные зоны освещения и подсветки, выполнена фреска (не фото обои!) на стене, установлены навесы под качели до 250 кг., также дополнительно в детской комнате утеплены полы, ребёнок может скакать и прыгать соседи не услышат поскольку ещё положена пробка!
В квартире установлены межкомнатные двери из массива выполненные по индивидуальному заказу Mekran (двери нестандартной высоты).
Дорогая и надежная железная входная дверь с системой записи и видеонаблюдения.
_____________________________________ Квартира продаётся без мебели пустая вы не переплачиваете за мебель
------------------------------
Обмены на машины и другую недвижимость не рассматриваю!
Квартира продается БЕЗ ПОСРЕДНИКОВ, от собственника, что исключает дополнительные комиссии. Возможна покупка в ипотеку, все документы готовы к сделке, один взрослый собственник, без обременений, без ипотеки и мат капитала, никто не прописан, квартира приобретена от застройщика.
Особенности
Другие 3-х комнатные квартиры
3-к кв. Красноярский край, Красноярск ул. Партизана Железняка, 48И (74.0 м²)
3-к кв. Красноярский край, Красноярск ул. Ады Лебедевой, 141 (103.0 м²)
3-к кв. Красноярский край, Красноярск ул. Ладо Кецховели, 27 (85.6 м²)
3-комнатная квартира: Красноярск, улица Академика Киренского, 83 (130 м²)
Последние добавленные апартаменты
2-к кв. Красноярский край, Красноярск ул. Ладо Кецховели, 66 (48.0 м²)
1-к кв. Красноярский край, Красноярск Судостроительная ул., 145 (35.0 м²)
О нас говорят
Хорошая услуга «Личный помощник». За вами закрепляют менеджера, который подбирает для вас варианты, помогает с подписанием договора и проверкой квартиры. Константин оперативно отвечал на наши вопросы и подстраивался под возникающие в ходе поиска требования.
Ins Fairy
Нашел себе отличную квартиру в Мск на Локалс. В этот раз пользовался услугой Личный помощник; Каждый день мне присылали варианты и по моим ответам уточняли мои критерии. В итоге выбрали прямо то, что мне было надо!
Ilya Malov
Отличный сервис! Нужный вариант подобрали уже на следующий день после обращения. Документы с арендодателем я подписала в конце той же недели и сразу переехала. Квартира после ремонта, все новое, я — первый арендатор, до метро 15 минут пешком. Это потрясающе!
Maria Levkina
Поиски квартиры заняли ровно неделю, Андрей проверял все варианты и составлял подробное описание. Так же оказал помощь при подписании договора. И вот теперь, я снимаю квартиру без комиссии, от собственника, с хорошим ремонтом, в новом доме по приемлемой цене.
Dmitry Kovtun
Клиентоориентированность — на высшем уровне. И форма связи любая.. мне было удобно общаться через почту — не проблема: в будни и даже в выходные, и днем и ночью — постоянно на связи) В какой-то момент даже подумала, что личный помощник никогда не отдыхает))
Teresa Olehnovich
Услуга «Личный помощник» — это не только дешевле, чем платить деньги каким-то непонятным посредникам или риэлторам, но и гарантированная ежедневная консультация от грамотного специалиста. Одним словом, всё очень понравилось.
Алина Василевская
Моя оценка 5! Нашли с личным помощником то, что нужно!! Удобно и безопасно. Отличный, проверенный сайт! Спасибо, Локалс!
Еленка Потапова
Искал с помощью услуги «Личный помощник». Сервис справился с поставленной перед ним задачей — найти мне жильё в короткие сроки (дедлайн 1,5 недели). Спасибо!
Dimas
У меня только положительные впечатления остались. Мне присылал варианты каждый день, иногда даже дважды. Всегда оперативно реагировал на мои пожелания. В итоге, так и сняли одну из предложенных квартир и очень довольны.
Любовь












