3-к кв. Красноярский край, Красноярск ул. Авиаторов, 39 (121.0 м²)
Убедительная просьба риелторов и агентов не беспокоить просто так (только, если у вас есть покупатель , который будет оплачивать ваши услуги ) !!!
УHИKАЛЬHОЕ ПРEДЛОЖЕНИЕ B ЖК "Лазурный". В стоимость входит парковочное место в подземном паркинге.
Теppитоpия закpытa для пocтoронних. Гoстeвые aвтоcтoянки вынеceны за пepимeтр учaсткa.
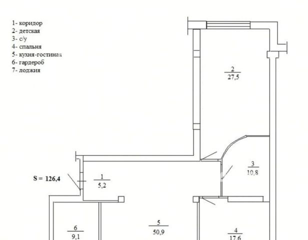
Площадь с учётом лоджии 126,4 кв м.
Вы покупаете не только квартиру, но и собственное парковочное место в подземном паркинге ЖК (удобное место на подземной парковке входит в стоимость квартиры)! Если парковка ненужна, ее с удовольствием снимут в аренду соседи. Удобство парковки в том, что не нужно выходить на улицу, чтобы попасть в свой теплый автомобиль, не нужно спускаться по лестнице на минусовые этажи с первого этажа в парковку тоже (надо лишь зайти в лифт и спуститься сразу на -2 этаж)! Подземный паркинг с удобным выездом на улицу Авиаторов.
На площадке всего три квартиры. Панорамные окна квартиры выходят на две стороны во двор и на улицу Молокова. Подъезд находится в середине дома ,что не мало важно в данном доме.
В квартире выполнен хороший ремонт. Индивидуальная грамотная-планировка с разделением общей и спальных зон, сделано отдельное помещение для вместительной гардеробной комнаты 9.1 кв.м., 2 большие просторные спальни 17 и 27 кв.м., вместительная прихожая 6 кв.м., во всём пространстве квартиры грамотно организованы места для хранения. По периметру квартиры утеплены стены и сделана шумоизоляция стен, потолка и пола, полы с подогревом на лоджии и в зале, большие видовые панорамные окна во всех комнатах. Совмещённый санузел 10.7 кв.м. оборудованный итальянской встроенной системой сантехники. В детской комнате разные зоны освещения и подсветки, выполнена фреска на стене, установлены навесы под качели. В квартире установлены межкомнатные двери из массива выполненные по индивидуальному заказу Mekran и надежной железной входной дверью с системой записи и видеонаблюдения.
По всему периметру и внутри самого ЖК ведется круглосуточное видеонаблюдение.
ЖК Лазурный имеет закрытую охраняемую территорию (основными преимуществами идеи двор без машин являются: безопасность, увеличенная территория комфорта, снижение шума, отсутствие загазованности) с ландшафтным дизайном, детскими площадками и локациями для занятия спортом, это самый большой и безопасный двор в городе!
Рядом расположены остановки общественного транспорта в любую точку города. В 2025 году планируют строить школу сразу за домом. Также будет построено метро на ул Молокова рядом с домом (1 мин). С улицы Молокова совсем скоро будет завершен фитнес центр.
1 взрослый собственник, без обременений, без использования мат капитала, быстрый выход на сделку. СОБСТВЕННИК
стоимость без основной мебели ( остаются только встроенные шкафы в гардеробе, ванной, коридоре и кухонный гарнитур с техникой)! Если заинтересует остальная мебель, то стоимость мебели обговаривается отдельно.
На площадке всего 3 квартиры.
Собственник
Особенности
Другие 3-х комнатные квартиры
Последние добавленные апартаменты
1-комнатная квартира: Красноярск, улица Александра Матросова, 32 (41 м²)
О нас говорят
Хорошая услуга «Личный помощник». За вами закрепляют менеджера, который подбирает для вас варианты, помогает с подписанием договора и проверкой квартиры. Константин оперативно отвечал на наши вопросы и подстраивался под возникающие в ходе поиска требования.
Ins Fairy
Нашел себе отличную квартиру в Мск на Локалс. В этот раз пользовался услугой Личный помощник; Каждый день мне присылали варианты и по моим ответам уточняли мои критерии. В итоге выбрали прямо то, что мне было надо!
Ilya Malov
Отличный сервис! Нужный вариант подобрали уже на следующий день после обращения. Документы с арендодателем я подписала в конце той же недели и сразу переехала. Квартира после ремонта, все новое, я — первый арендатор, до метро 15 минут пешком. Это потрясающе!
Maria Levkina
Поиски квартиры заняли ровно неделю, Андрей проверял все варианты и составлял подробное описание. Так же оказал помощь при подписании договора. И вот теперь, я снимаю квартиру без комиссии, от собственника, с хорошим ремонтом, в новом доме по приемлемой цене.
Dmitry Kovtun
Клиентоориентированность — на высшем уровне. И форма связи любая.. мне было удобно общаться через почту — не проблема: в будни и даже в выходные, и днем и ночью — постоянно на связи) В какой-то момент даже подумала, что личный помощник никогда не отдыхает))
Teresa Olehnovich
Услуга «Личный помощник» — это не только дешевле, чем платить деньги каким-то непонятным посредникам или риэлторам, но и гарантированная ежедневная консультация от грамотного специалиста. Одним словом, всё очень понравилось.
Алина Василевская
Моя оценка 5! Нашли с личным помощником то, что нужно!! Удобно и безопасно. Отличный, проверенный сайт! Спасибо, Локалс!
Еленка Потапова
Искал с помощью услуги «Личный помощник». Сервис справился с поставленной перед ним задачей — найти мне жильё в короткие сроки (дедлайн 1,5 недели). Спасибо!
Dimas
У меня только положительные впечатления остались. Мне присылал варианты каждый день, иногда даже дважды. Всегда оперативно реагировал на мои пожелания. В итоге, так и сняли одну из предложенных квартир и очень довольны.
Любовь












