














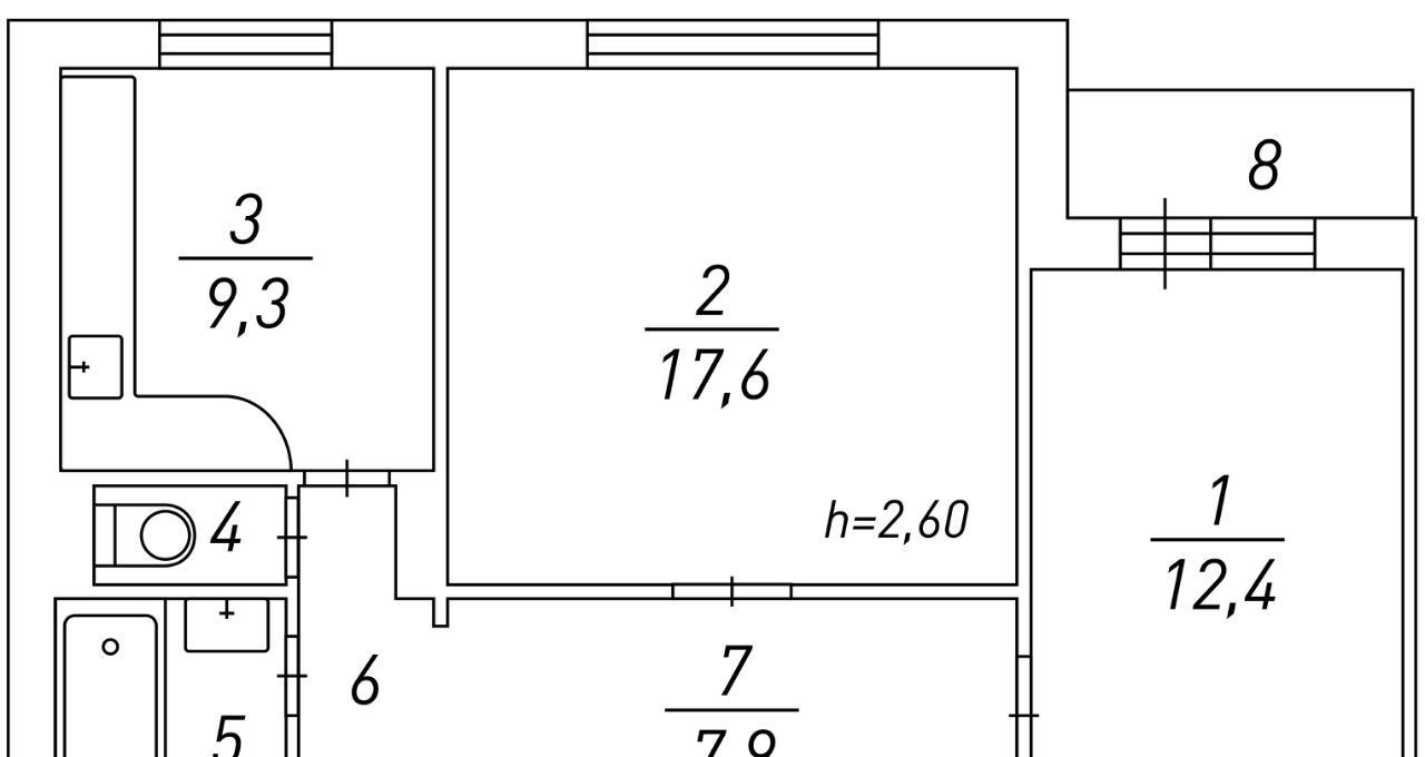
2-к кв. Красноярский край, Красноярск ул. Ладо Кецховели, 39 (53.3 м²)
Двухкомнатная квартира, типовой проверенной временем планировки.
Ремонт не требуется. Оптимальный этаж. Квартира теплая.
Доброжелательные соседи по подъезду.
Метро будет в шаговой доступности. После постройки метро стоимость квартиры резко возрастет!
Один взрослый собственник.
Во дворе детские и спорт. площадки. В шаговой доступности Школа 36, Д.сад Катерок и Д.с. 10.
Рядом 2 супермаркета и магазин у дома. Недалеко есть сквер для прогулок и ТЦ Апельсин.
Без обременений, без долгов. Чистая продажа.
Цена ниже среднерыночной!
Особенности
Другие 2-х комнатные квартиры
2-к кв. Красноярский край, Красноярск ул. Академика Киренского, 126а (48.5 м²)
2-к кв. Красноярский край, Красноярск Красномосковская ул., 1а (39.9 м²)
Последние добавленные апартаменты
Студия Красноярский край, Красноярск просп. 60 лет Образования СССР, 56 (23.0 м²)
О нас говорят
Хорошая услуга «Личный помощник». За вами закрепляют менеджера, который подбирает для вас варианты, помогает с подписанием договора и проверкой квартиры. Константин оперативно отвечал на наши вопросы и подстраивался под возникающие в ходе поиска требования.
Ins Fairy
Нашел себе отличную квартиру в Мск на Локалс. В этот раз пользовался услугой Личный помощник; Каждый день мне присылали варианты и по моим ответам уточняли мои критерии. В итоге выбрали прямо то, что мне было надо!
Ilya Malov
Отличный сервис! Нужный вариант подобрали уже на следующий день после обращения. Документы с арендодателем я подписала в конце той же недели и сразу переехала. Квартира после ремонта, все новое, я — первый арендатор, до метро 15 минут пешком. Это потрясающе!
Maria Levkina
Поиски квартиры заняли ровно неделю, Андрей проверял все варианты и составлял подробное описание. Так же оказал помощь при подписании договора. И вот теперь, я снимаю квартиру без комиссии, от собственника, с хорошим ремонтом, в новом доме по приемлемой цене.
Dmitry Kovtun
Клиентоориентированность — на высшем уровне. И форма связи любая.. мне было удобно общаться через почту — не проблема: в будни и даже в выходные, и днем и ночью — постоянно на связи) В какой-то момент даже подумала, что личный помощник никогда не отдыхает))
Teresa Olehnovich
Услуга «Личный помощник» — это не только дешевле, чем платить деньги каким-то непонятным посредникам или риэлторам, но и гарантированная ежедневная консультация от грамотного специалиста. Одним словом, всё очень понравилось.
Алина Василевская
Моя оценка 5! Нашли с личным помощником то, что нужно!! Удобно и безопасно. Отличный, проверенный сайт! Спасибо, Локалс!
Еленка Потапова
Искал с помощью услуги «Личный помощник». Сервис справился с поставленной перед ним задачей — найти мне жильё в короткие сроки (дедлайн 1,5 недели). Спасибо!
Dimas
У меня только положительные впечатления остались. Мне присылал варианты каждый день, иногда даже дважды. Всегда оперативно реагировал на мои пожелания. В итоге, так и сняли одну из предложенных квартир и очень довольны.
Любовь












